SELLER: Actually, we're not quite sure
LOCATION: New York City, NY
PRICE: $15,750,000
SIZE: 3 bedrooms, 4 bathrooms
YOUR MAMAS (UPDATED) NOTES: We were unexpectedly waylaid along the way today but as promised in our earlier discussion of financier Bruce Barnes' big digs at the Dakota on New York City's Upper West Side, we're finally following up with some more juicy floor plan porn in the form of a Fifth Avenue penthouse listed last week with a $15,750,000 price tag.
Property records we peeped indicate and reports from the time of the purchase state the deluxe duplex, perched atop a full-service pre-war building almost directly across Central Park from the Barnes apartment, is owned by the Kathryn Beal and Bruce Beal Jr., a bigwig executive at real estate juggernaut Related Companies.
However—buckle up butter beans because it gets a little bumpy here—we've just heard from someone in a position to know that the posh penthouse is not owned by Mister Beal Jr. Apparently, according to our informative source, Mister Beal Jr.'s actual address is similar to that of this penthouse at 965 Fifth Avenue but it is not this penthouse as we originally thought (and reported).
Mister Beal Jr. and his missus, for what it's worth, bought their apartment at 965 Fifth Avenue—whichever one it is—for $10,000,000 from his multi-billionaire boss, real estate tycoon Stephen M. Ross, the current
Chairman, CEO and Founder of Related Companies and majority owner of the
Miami Dolphins football team who persuaded a bunch of celebs like
Serena Williams, Gloria Estefan and Marc Anthony to acquire, ahem,
minority stakes in the team.
Confused? We are too. Let's all down another mid-morning gin & tonic and maybe then it'll all make sense.
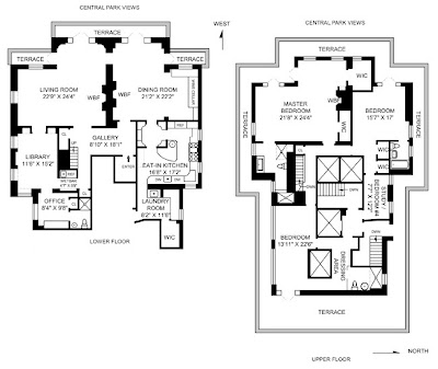
Anyhoodles poodles, the owner/seller of the penthouse in question is secondary here to the floor plans included with marketing materials that shows one of the building's passenger elevators opens directly in to the penthouse's entrance gallery. Both the similarly-shaped but not-quite-equally-sized living and dining room have Parquet de Versailles wood floors, wood burning fireplaces and each has access to two of the three small terraces on the lower level.
The multi-windowed, park view kitchen, tucked between the dining room and an unusually-large-for-Manhattan laundry room (with service entrance and walk-in storage closet) is all dressed up and expensively equipped with mosaic tile floor; marble tile back splashes that extend clear up to the ceiling; slab marble and mahogany counter tops; white Shaker-style cabinets and stainless steel cabinets that conceal the fridge and freezer; and a brass-accented Euro-brand range and hood that together, Your Mama can assure the children, cost more than a suped-up Scion or mid-range Hyundai.
The lower level is completed by a petite library lined walls and ceiling with high-gloss wood paneling and an adjoining home office with custom-built, floor-to-ceiling book cases.
Upstairs there are three bedroom suites, each with private pooper and direct access to the wrap around terrace. One guest/family bedroom has a wacky, u-shaped walk-in closet and the the other guest/family bedroom has a small adjoining private study.
The Master suite has two closets—one a windowed walk-in; a sitting area with fireplace, dressing area and vaguely Art Deco-style bathroom with black marble floors; walls completely covered white marble separate; semi-opaque, bottle glass-enclosed stall shower; and a soaking tub set into a marble-lined niche.
A second, much smaller and somewhat (in)famous apartment on the 18th floor can be purchased concurrently to flesh out the lower floor with a combined asking price of $17,900,000. The 1 bedroom and 2 bathroom apartment was once owned by rock music manager turned legendary New York City real estate agent to the stars Linda Stein who was—brace yourselves—bludgeoned to death in 2007 by her assistant. Miz Stein's long-time residence at 965 Fifth was sold to its current owner in August 2008 for $1,045,000.
The smaller apartment doesn't appear to be on the open market but, according to rudimentary calculations on our bejeweled abacus, given the combined asking price ($17,900,000) and the price of the penthouse ($15,750,000) the value for the old Stein place has been placed at $2,150,000
listing photos and floor plan: Prudential Douglas Elliman
Wednesday, June 27, 2012
Subscribe to:
Post Comments (Atom)




4 comments:
The first floor loo is positioned in a discreetly remote location or in Siberia, dependent upon one's perspective.
Rabbi LaTess
an unusually-large-for-Manhattan laundry room
Heck, it's bigger than a lot of bedrooms in Manhattan apartments.
I can't divulge who is the owner but I actually was contracted to install the audio video sustems in this apartment. The family is not necessarily famous he's a CEO of a multi-national company.
Between you, me and the Interwebs, the construction was pretty top notch.
he lower level is completed by a petite library lined walls and ceiling with high-gloss wood paneling and an adjoining home office with custom-built, floor-to-ceiling book cases. travertine paving
Post a Comment